| Arch 305A | Memory and Destruction |
| Design Studio | |
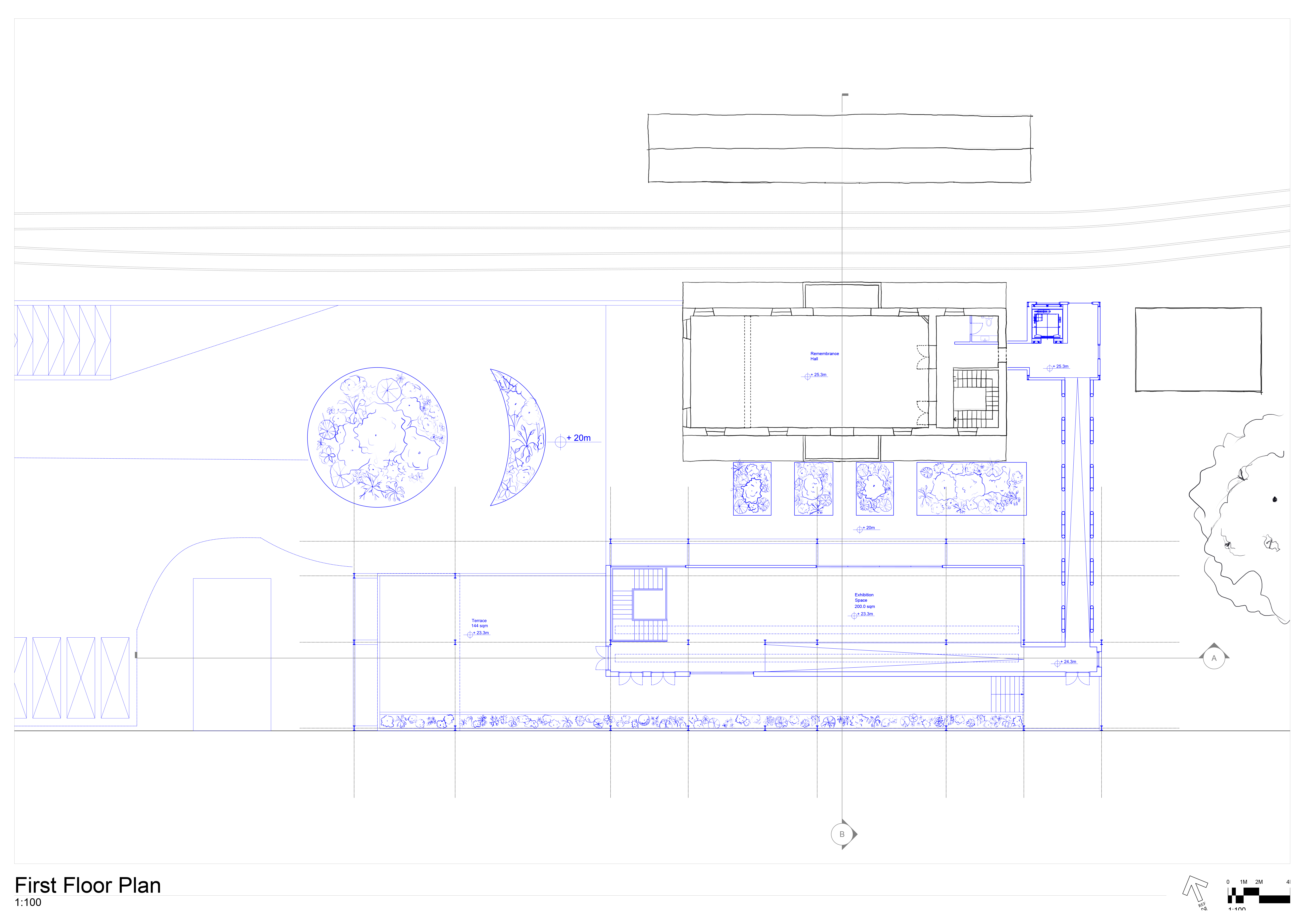
| Type | Renovation, Industrial, Public |
| Location | Mar Mikhael Train Station |
| Brief | Design a memorial in response to August 4th Blast. Individual Work |
| Description | The site was selected on the basis of intervening in a healing manner on Lebanon as a whole rather than Beirut only. Renovating the station would act as an initial gesture of restarting the economic cycle from the public transport industry. The site then extends from the train station functions (representing the future plans) into the memorial which reminds us of past events. “Those that fail to learn from history are doomed to repeat it.” ~ Winston Churchill |


















