| Reuse Italy | Reuse the Thermae |
| Competition Entry | |
| Type | Archaeological Site, Museum, Pavillion |
| Location | Acconia, Catanzaro, Italy |
| Brief | Conceive the ruins as an archaeological site Make it open and freely accessible to visitors Shelter it to protect it from the weather (Canopy, Roof, Volume, Fence,…) Design a path to visit the ruin Individual Work |
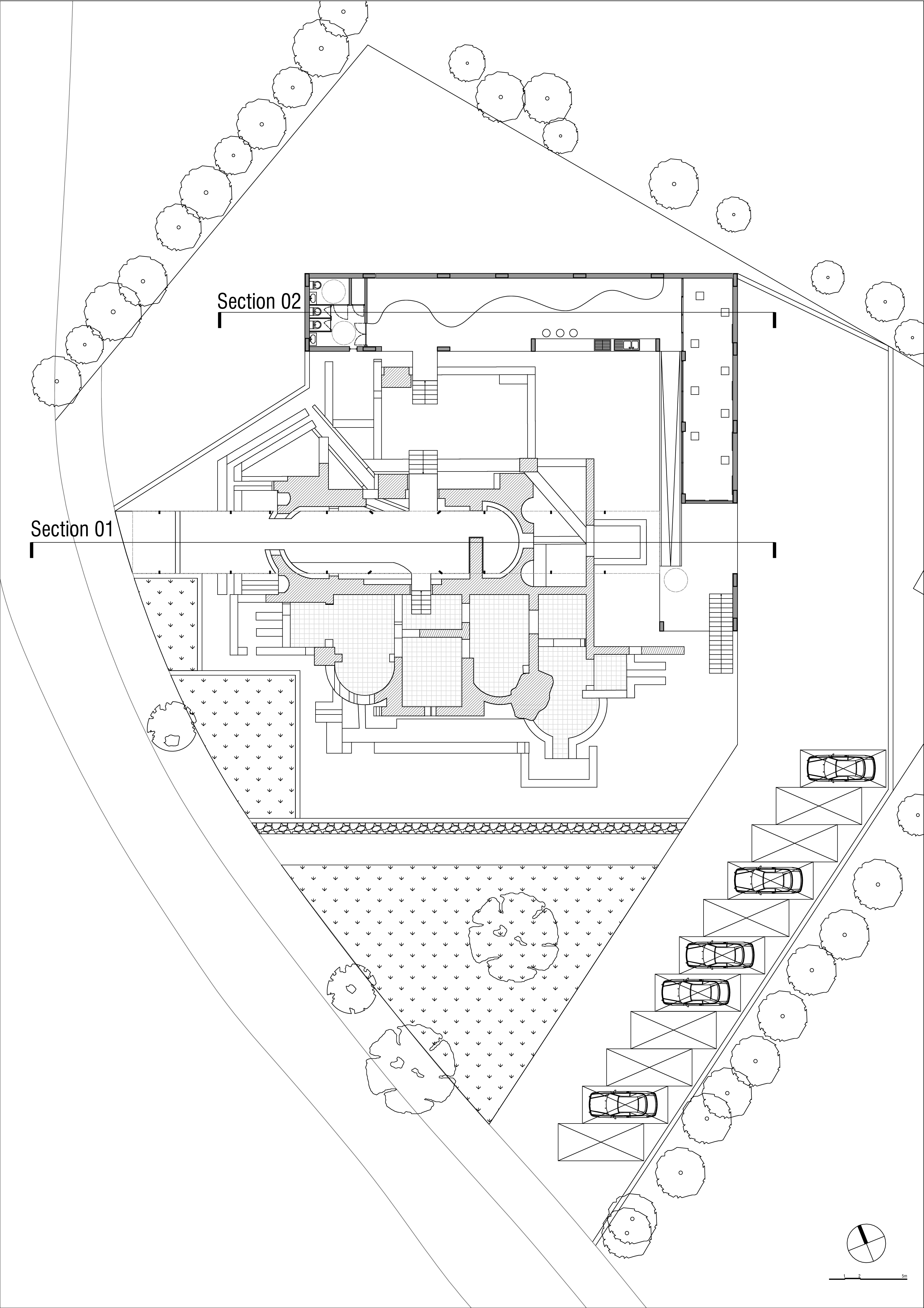
| Description | Nestled on the outskirts of Acconia, a charming town in the Catanzaro province, the Roman Baths in Curinga stand resilient, a testament to the ages, dating back to an era lost in time. These architectural remnants, nearly reaching their original roof height, exist not merely as ruins but as a poignant connection, tying the past seamlessly to the present. However, these thermal baths, a testament to time’s relentless march, have become almost inaccessible to the public. To breathe new life into this historic site, “The Shadow” emerges as a concept, offering a fresh perspective and inviting these treasures into the spotlight. This approach weaves a tapestry of subtlety and exploration, encouraging visitors into a journey of discovery. It unfolds as a multifaceted intervention, dividing into distinct parts: the illuminated object in the light (The Thermals Baths) and its counterpart, the shadow. While the thermal ruins stand as a beautiful spectacle, there’s an inherent lack of an explicit invitation to explore. Approaching from the road, visitors are greeted by an enticing visual narrative that transforms a simple invitation to explore into a carefully choreographed path. A deliberately designed journey unfolds, directing visitors toward the concealed shadow volume—the fence. This concealed L-shaped volume discreetly envelops the Thermal Baths, hidden from immediate view. It operates as a silent guardian, subtly guiding visitors toward the heart of the site, while providing a canvas for the thermal baths to cast their shadows. Preserving the site’s sanctity, it allows functional spaces to exist, leaving the central volume to act as a communal gathering space, the pavilion. The intervention strategically plays with the contrast between the wavy, attractive roof and the subtle flat volume in the background. Crafted from white plaster, the material creates a striking visual complement to the thermal ruin’s red bricks. Original tiles are retained for visitors to experience authenticity, while the rest of the site is smoothed using white gravel. The landscaped garden not only enhances aesthetics but also identifies designated paths leading to the thermal ruins. This intervention transcends being a mere physical structure; it is a narrative, an invitation to explore, ensuring the site remains at the central spotlight—a spectacle to be observed, a place to be explored. “The Shadow” breathes new life into the Thermal Baths, honoring their history while inviting a generation to uncover their secrets |














